MDB2 Matterport
With the support of Matterport technology we can take high density scans of your spaces to create assets from google street view style tours, virtual walkthroughs, engineering assets such as BIM and Revit Models, Cad Drawings and 3D Renders.
3D Render of MDB2
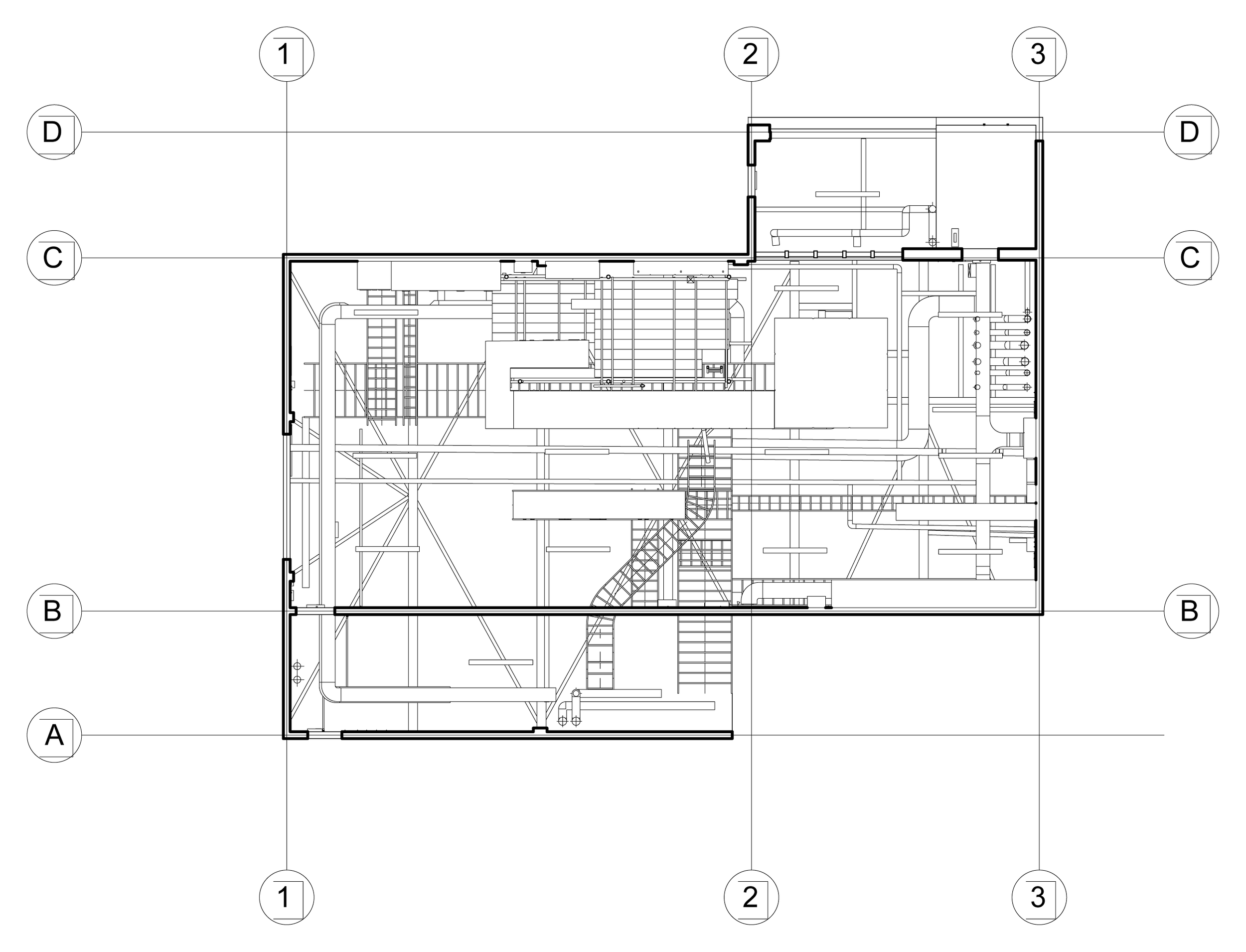
CAD Drawings of MDB2
Dollhouse View of MDB2
BIM Model of MDB2
